Blvd. Hnos. Serdán No. 41 Col. Amor  Puebla, Pue.  C.P. 72140 T&F +52 (222) 248 0817
 
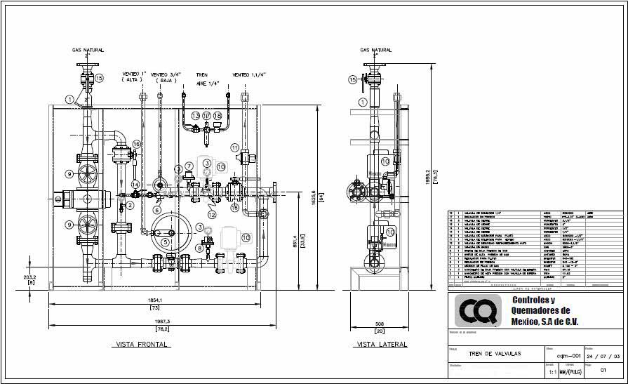
Controles y Quemadores de México ofrece el diseño y armado de Trenes de Válvulas para sistemas de combustión, estos sistemas se construyen siguiendo los requerimientos de seguridad para sistemas de quemadores  de organismos Internacionales tales como IRI (Industrial Risk Insurers).

Nuestros trenes de válvulas están diseñados con la instrumentación necesaria y sometidos a pruebas
de hermeticidad  en taller para garantizar la seguridad y el buen funcionamiento de los equipos de
combustión.
Trenes de válvulas y redes de gas natural y gas LP.
En CQM también ofrecemos el servicio de diseño, construcción e instalación de redes de Gas Natural y Gas LP, construidas conforme a la norma oficial y con la instrumentación necesaria para minimizar riesgos y proporcionar el energético necesario para la operación de consumo.


Puebla : (222) 2480817
Orizaba : (272) 724 8367